
BALDI HOME JEWELS
Design of a Private Apartment in London
Interior and Object Design, Project Development
2018 - 2020

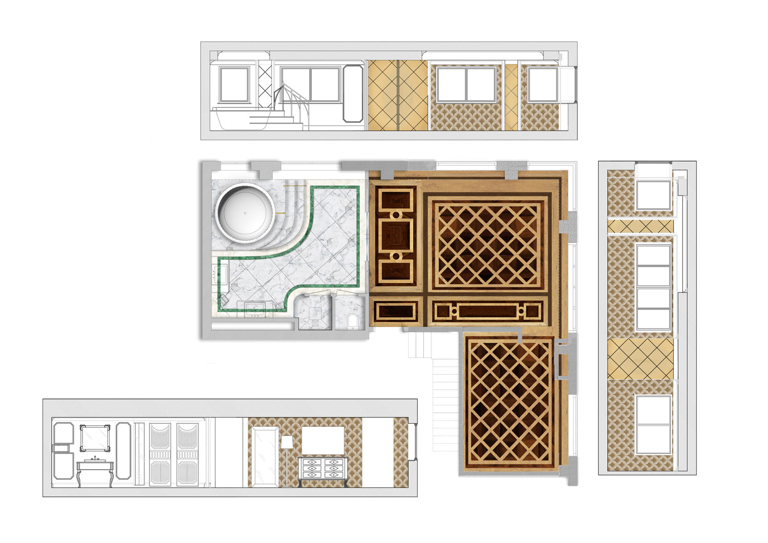
We collaborated with Baldi Home Jewels for the interior design of a luxury apartment located in one of the most exclusive residential areas of London, focusing in particular in the design of the bathroom area, the fulcrum of the project. Through the collaboration with Studio Bojola, Baldi Home Jewels achieved international recognition for its ability to blend art and luxury, creating one of a kind objects and interiors.

For the London apartment, our vision was to create an environment that combined contemporary elegance and absolute comfort, using a range of materials that included malachite, used as the dominant motif in the bathroom area. This gemstone, known for its deep green and natural patterns, brought a touch of brightness and luxury, in stark contrast to modern surfaces. In the sleeping area, inlaid wooden floors added an additional layer of sophistication and warmth, completing the apartment's refined aesthetic.


