
BALDI HOME JEWELS
Design of a Private Apartment in Riyadh
Interior and Object Design, Project Development
2015

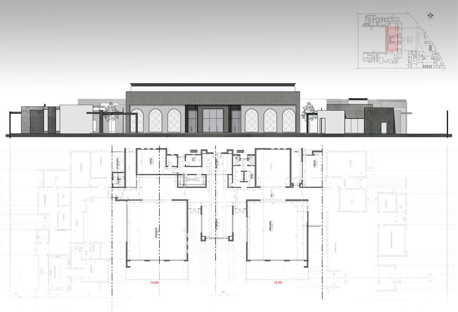
We collaborated with Baldi Home Jewels for the interior design of a luxury private villa in Riyadh, with a particular focus on the design of the large and bright spaces, which reflect a modern design as requested but the client. Through the collaboration with Studio Bojola, Baldi Home Jewels achieved international recognition for its ability to blend art and luxury, creating one of a kind objects and interiors.
Project

The project features a range of fine materials that included pale marbles on the floors, extending into a visual dialogue with the white desert visible from the large windows. Natural elements, combined with more modern structures, create a visually stimulating contrast.


Livng Area


Bedroom Area